Режим работы: ПН-ПТ с 09:00 до 20:00
Санкт-Петербург, ул.Кубинская, 75 к5

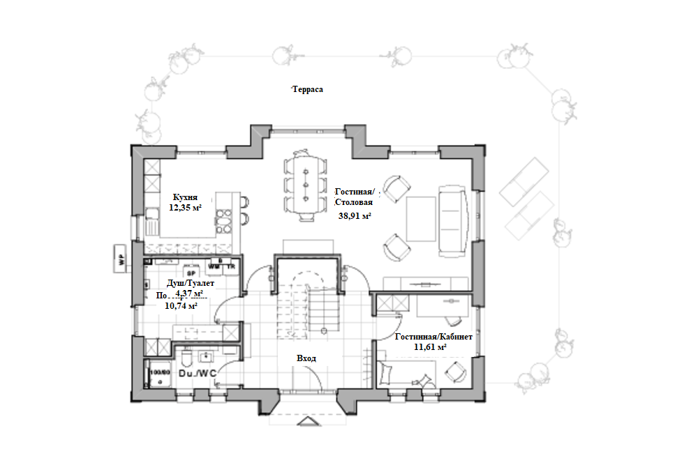
Проект HE470-318

Варианты исполнения проекта:
Общая площадь: 229 м²
Жилая площадь: 181 м²
Размер дома: 9.1x12.6 м²

Стоимость:
30000
37000
40000
48000
Дом (холодный контур) с фундаментом и коммуникациями: 30000 руб.
Дом (теплый контур) с фундаментом и коммуникациями: 37000 руб.
Дом под ключ: 40000 руб.
Пассивный дом: 48000 руб.
В домах от 2х этажей монолитная лестница в подарок
Качественная ЛОС с монтажем в подарок(в комплектациях энергоэффективный и выше)
Гарантия 2 года
Предоплата 0%
Цены указаны с учетом доставки и строительства
Организуем проживание рабочих за свой счет
Полниый цикл инженерных работ с гарантией работоспособности
Стоимость сметы не меняется к концу стройки
Возведение коробки всего за 3 месяца

Что входит в стоимость дома:

Дом (холодный контур) с фундаментом и коммуникациямиДом (теплый контур) с фундаментом и коммуникациямиДом под ключПассивный дом
  • Геология участка с заключением в печатном формате и на диске
  • Фундамент монолитная утепленная DOW плита
  • Разводка канализации на этапе котлована, 2 точки ввода
  • Несущие стены из газобетона (Аэрок/H+H)
  • Перегородки из газобетона 100мм
  • Разводка холодного водоснабжения качественными трубами без стыков
  • Разводка горячего водоснабжения качественными трубами без стыков
  • Разводка до радиаторов качественными трубами без стыков
  • Межэтажное перекрытие заводскими плитами
  • Кровля из сухих пиломатериалов с покрытием металлочерепицей
  • Зашивка ветро-гидроизоляцией из качественного материала
  • Временная деревянная лестница на 2,3 этаж
  • Доставка материалов
  • Бытовка для проживания рабочих
  • Вывоз мусора
  • Геология участка с заключением в печатном формате и на диске
  • Фундамент монолитная утепленная DOW плита
  • Разводка канализации на этапе котлована, 2 точки ввода
  • Несущие стены из газобетона (Аэрок/H+H)
  • Перегородки из газобетона 100мм
  • Разводка холодного водоснабжения качественными трубами без стыков
  • Разводка горячего водоснабжения качественными трубами без стыков
  • Разводка до радиаторов качественными трубами без стыков
  • Межэтажное перекрытие заводскими плитами
  • Кровля из сухих пиломатериалов с покрытием металлочерепицей
  • Зашивка ветро-гидроизоляцией из качественного материала
  • Временная деревянная лестница на 2,3 этаж
  • Окна VEKA - 1 камерные, энергосберегающие(до 10% от площади наружных стен)
  • Утепление кровли
  • Пароизоляция кровли качественными материалами
  • Внутренняя подшивка кровли плитными материалами
  • Временная стальная входная дверь
  • Доставка материалов
  • Бытовка для проживания рабочих
  • Вывоз мусора
  • Геология участка с заключением в печатном формате и на диске
  • Проект дома
  • Расчет теплопотерь дома с рекомендациями по дальнейшему подбору котла и режима отопления
  • Станция биологической очистки
  • Фундамент монолитная утепленная УШП плита с дренажом по периметру
  • Разводка канализации до всех точек потребления
  • Несущие стены из газобетона (Аэрок/H+H)
  • Перегородки из силикатных блоков с высоким уровнем звукоизоляции
  • Разводка холодного водоснабжения качественными трубами без стыков
  • Разводка горячего водоснабжения качественными трубами без стыков
  • Разводка теплых полов во всем доме
  • Монтаж коллекторов холодного, горячего водоснабжения и теплых полов
  • Межэтажное перекрытие - утепленное сборно-монолитное
  • Черновая бетонная стяжка интегрированная с перекрытием
  • Кровля из сухих пиломатериалов с покрытием из среднего-премиального ценового сегмента в зависимости от типа покрытия.
  • Зашивка ветро-гидроизоляцией из качественного материала
  • Утепление кровли
  • Пароизоляция кровли качественными материалами
  • Внутренняя подшивка кровли плитными материалами
  • Внешняя подшивка кровли сухими пиломатериалами с покраской
  • Снегозадержание на кровлю
  • Водосточная система кровли
  • Окна VEKA - 2 камерные, энергосберегающие для пассивных домов(до 10% от площади наружных стен)
  • Входная дверь для загородных домов с терморазрывом
  • Ливневая канализация
  • Вытяжные каналы с выводом на кровлю - кухная, санузел, канализационный стояк
  • Монолитная лестница на 2,3 этаж
  • Бытовка для проживания рабочих на время строительства
  • Доставка материалов
  • Вывоз мусора
  • Геология участка с заключением в печатном формате и на диске
  • Проект дома
  • Расчет теплопотерь дома с рекомендациями по дальнейшему подбору котла и режима отопления
  • Станция биологической очистки
  • Фундамент монолитная утепленная УШП плита с дренажом по периметру
  • Разводка канализации до всех точек потребления
  • Монолитно-каркасные стены под утепление
  • Перегородки из силикатных блоков с высоким уровнем звукоизоляции
  • Разводка холодного водоснабжения качественными трубами без стыков
  • Разводка горячего водоснабжения качественными трубами без стыков
  • Разводка теплых полов во всем доме
  • Монтаж коллекторов холодного, горячего водоснабжения и теплых полов
  • Межэтажное перекрытие - утепленное сборно-монолитное
  • Черновая бетонная стяжка интегрированная с перекрытием
  • Кровля из сухих пиломатериалов с покрытием из среднего-премиального ценового сегмента в зависимости от типа покрытия.
  • Зашивка ветро-гидроизоляцией из качественного материала
  • Утепление кровли 400мм
  • Пароизоляция кровли качественными материалами
  • Внутренняя подшивка кровли плитными материалами
  • Внешняя подшивка кровли сухими пиломатериалами с покраской
  • Снегозадержание на кровлю
  • Водосточная система кровли
  • Окна VEKA - 2 камерные, энергосберегающие для пассивных домов(до 10% от площади наружных стен)
  • Входная дверь для загородных домов с терморазрывом
  • Ливневая канализация
  • Вытяжные каналы с выводом на кровлю - кухная, санузел, канализационный стояк
  • Монолитная лестница на 2,3 этаж
  • Бытовка для проживания рабочих на время строительства
  • Доставка всех материалов
  • Вывоз мусора

Укажите Ваше имя и номер телефона и мы перезвоним в ближайшее время

Заявка на расчет

Укажите Ваше имя и номер телефона

Укажите Ваше имя и номер телефона и мы перезвоним в ближайшее время